Claire Wood
/ Art & Architecture
Work
Banff 2017
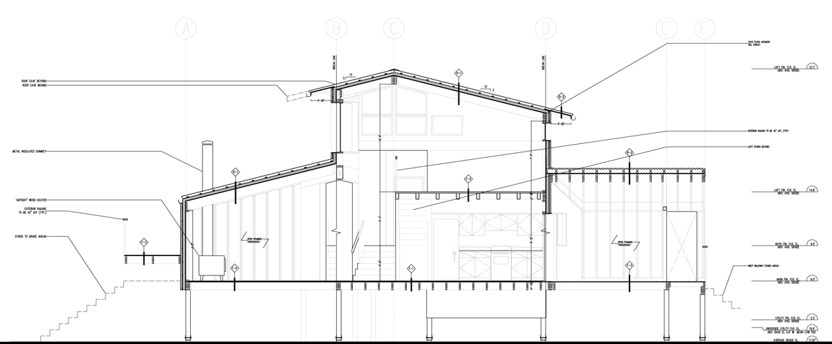
Cabin
Ripple Rock
Stadtwald Dresden
The Silent Barn
Fireplace Road Residence
Parchment Sideboard
Boathouse
reOrder
Earls Cove Residence
Hospice/Archive
Asakusa Gate
Sketching Iran
Design Principles
WRKS DVSN: Nowadays Dear
Paintings
info
C V
Contact
2015
Cabin
Cabin on an island
 
№
1/1
Next image
→
Previous image
←
© Copyright Claire Wood 2026